Каталог товаров

Приточно-вытяжная установка с роторным рекуператором и ЕС-двигателем RWN-RR-ЕС
Бесплатный проект

Описание товара
Характеристики моделей
Купить
Руководства

Установка вентиляционная RWN-RR предназначена для общеобменной вентиляции помещений. Компактность установки позволяет располагать её под потолком или у стены, экономя при этом пространство.
Корпус установки выполнен из оцинкованной стали и по запросу, снаружи может быть покрыт порошковой краской. Стандартно панели в исполнении Compact имеют толщину 25 мм, а в исполнении Vertical и Classic - 50мм. Панели заполнены слоем теплошумоизоляции на основе негорючей минеральной ваты.
Роторный рекуператор имеет уникальную конструкцию, которая позволяет сохранять максимальный КПД с наименьшими аэродинамическими потерями. 

Конструктивное исполнение: 

Compact - воздуховоды в одной горизонтальной плоскости (подвесное исполнение).
Vertical - постаментное исполнение - патрубки расположены сверху.
Classic - постаментное (двухэтажное) исполнение - патрубки расположены с торцов, воздуховоды идут друг над другом. 

Тип корпуса: 

25m - бескаркасная конструкция с изоляцией 25 мм: Установка может располагаться вне помещения при температуре не ниже -20°С. Класс защиты – IP50.
50m - бескаркасная конструкция с изоляцией 50 мм: Установка может располагаться вне помещения при температуре не ниже -30°С. Класс защиты – IP50.
50c - каркасно-панельная конструкцию с изоляцией 50 мм: Установка может располагаться вне помещения при температуре не ниже -30°С. Класс защиты – IP50.

Габаритные размеры

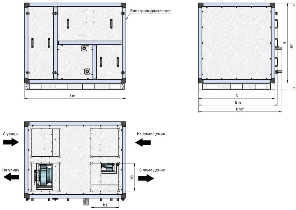
Габаритные размеры RWN-RR-300(25m)... RWN-RR-1000(25m) (мм) в исполнении корпуса Compact

RWN-RR-EC_Compact 300-1000.jpg

Bm* - размер указан для водяного исполнения
Диаметр патрубков водяного нагревателя G ½“

Модель и

типоразмер

L

B

L1

B1

a

b

D

Lm

Bm

Hm

Масса, кг

RWN-RR-300(25m)-ЕС-НЕ0,4-Compact(N)

1020

647

1060

562

283

169

Ø160

1107

691

447

60

RWN-RR-400(25m)-ЕС-НЕ0,8-Compact(N)

1020

647

1060

562

283

169

Ø200

1107

691

447

60

RWN-RR-500(25m)-ЕС-НЕ1,5-Compact(N)

1020

647

1060

562

283

169

Ø200

1107

691

447

60

RWN-RR-600(25m)-ЕС-НЕ1,9-Compact(N)

1020

647

1060

562

283

169

Ø200

1107

691

447

65

RWN-RR-1000(25m)-ЕС-НЕ1,8-Compact(N)

1020

1020

1060

962

505

262

Ø250

1107

1060

447

115

RWN-RR-1000(25m)-ЕС-W-Compact(N)

1020

1020

1060

962

505

262

Ø250

1107

1188

485

127

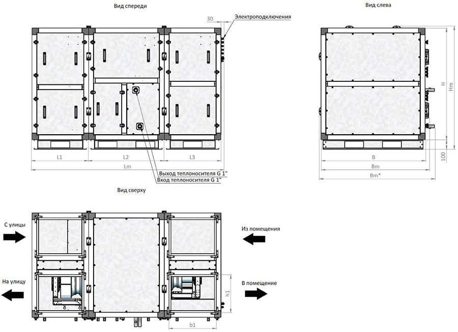
Габаритные размеры RWN-RR-1600(25m)... RWN-RR-3700(25m) (мм) в исполнении корпуса Compact

RWN-RR-EC_Compact 1600-3700.jpg

Bm* - размер указан для водяного исполнения
Диаметр патрубков водяного нагревателя G 1“

Модель и

типоразмер

B

H

L

b1 x h1

b

h

Lm

Bm

Hm

Масса, кг

RWN-RR-1600(25m)-ЕС-НЕ5,5-Compact(N)

1359

507

1347

500x300

652

254

1434

1435

547

209

RWN-RR-1600(25m)-ЕС-W-Compact(N)

1359

507

1347

500x300

652

254

1434

1435

547

209

RWN-RR-2000(25m)-ЕС-НЕ7,5-Compact(N)

1359

507

1547

600x350

652

254

1634

1435

547

223

RWN-RR-2000(25m)-ЕС-W-Compact(N)

1359

507

1547

600x350

652

254

1634

1435

547

223

RWN-RR-2900(25m)-ЕС-НЕ7,5-Compact(N)

1810

771

1730

700x400

877

386

1887

1814

812

282

RWN-RR-2900(25m)-ЕС-W-Compact(N)

1810

771

1930

700x400

877

386

2087

1814

812

309

RWN-RR-3700(25m)-ЕС-НЕ11,5-Compact(N)

1810

771

1730

800x500

877

386

1887

1814

812

285

RWN-RR-3700(25m)-ЕС-W-Compact(N)

1810

771

1930

800x500

877

386

2087

1814

812

312

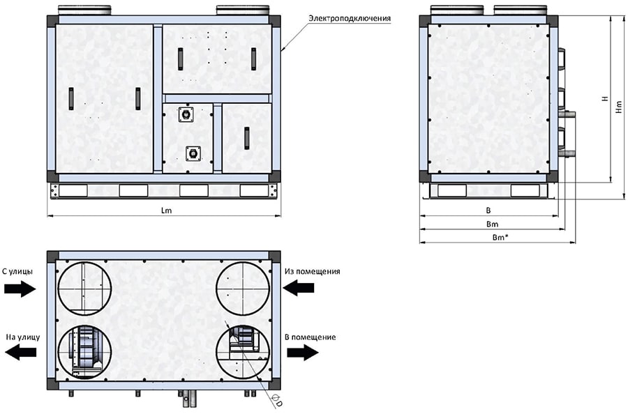
Габаритные размеры RWN-RR-300(50m)...RWN-RR-600(50m) (мм) в исполнении корпуса Vertical

RWN-RR-EC_Vertical 300-600.jpg

Lm* - размер указан для водяного исполнения
Диаметр патрубков водяного нагревателя G ½“

Модель и

типоразмер

D

B

H

L1

a

b

s

z

Lm

Bm

Hm

Масса, кг

RWN-RR-300(50m)-ЕС-НЕ0,4-Vertical(N)

Ø160

516

904

993

170

170

168

236

1043

556

964

95

RWN-RR-400(50m)-ЕС-НЕ0,8-Vertical(N)

Ø200

516

904

993

170

170

168

236

1043

556

964

95

RWN-RR-500(50m)-ЕС-НЕ1,5-Vertical(N)

Ø200

516

904

993

170

170

168

236

1043

556

964

95

RWN-RR-500(50m)-ЕС-W-Vertical(N)

Ø200

516

904

993

170

170

168

236

1150

556

964

112

RWN-RR-600(50m)-ЕС-НЕ1,9-Vertical(N)

Ø200

516

904

993

170

170

168

236

1043

556

964

100

RWN-RR-600(50m)-ЕС-W-Vertical(N)

Ø200

516

904

993

170

170

168

236

1150

556

964

117

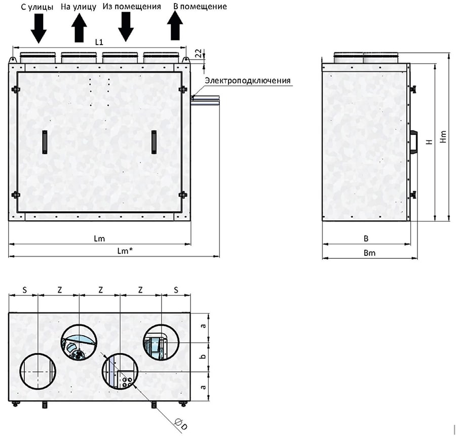
Габаритные размеры RWN-RR-1000(50c)...RWN-RR-1700(50c) (мм) в исполнении корпуса Vertical

RWN-RR-EC_Vertical 1000-1700.jpg

Bm* - размер указан для водяного исполнения
Диаметр патрубков водяного нагревателя G 1“

Модель и типоразмер

D

B

H

Lm

Bm

Hm

Масса, кг

RWN-RR-1000(50c)-ЕС-НЕ1,8-Vertical(N)

Ø250

815

930

1400

855

1090

172

RWN-RR-1000(50c)-ЕС-W-Vertical(N)

Ø250

815

930

1400

925

1090

178

RWN-RR-1300(50c)-ЕС-НЕ2,3-Vertical(N)

Ø315

832

930

1400

872

1090

200

RWN-RR-1300(50c)-ЕС-W-Vertical(N)

Ø315

832

1000

1400

942

1160

205

RWN-RR-1700(50c)-ЕС-НЕ3,8-Vertical(N)

Ø315

832

930

1400

872

1090

200

RWN-RR-1700(50c)-ЕС-W-Vertical(N)

Ø315

832

1000

1400

942

1160

205

Габаритные размеры RWN-RR-2500(50c)...RWN-RR-3600(50c) (мм) в исполнении корпуса Vertical

RWN-RR-EC_Vertical 2500-3600.jpg

Bm* - размер указан для водяного исполнения
Диаметр патрубков водяного нагревателя G 1“

Модель и

типоразмер

b1 x h1

B

H

Lm

Bm

Hm

Масса, кг

RWN-RR-2500(50c)-ЕС-НЕ4,5-Vertical(N)

400x400

1100

1150

1460

1140

1250

290

RWN-RR-2700(50c)-ЕС-НЕ5,6-Vertical(N)

400x400

1100

1150

1460

1140

1250

290

RWN-RR-2700(50c)-ЕС-W-Vertical(N)

400x400

1100

1150

1510

1200

1250

290

RWN-RR-3600(50c)-ЕС-НЕ9,4-Vertical(N)

500x400

1100

1180

1560

1140

1280

295

RWN-RR-3600(50c)-ЕС-W-Vertical(N)

500x400

1100

1180

1680

1200

1280

300

Габаритные размеры RWN-RR-4000(50c)...RWN-RR-7400(50c) (мм) в исполнении корпуса Vertical

RWN-RR-EC_Vertical 4000-7400.jpg

Bm* - размер указан для водяного исполнения

Модель и типоразмер

b1 x h1

B

H

L1

L2

L3

Lm

Bm

Hm

Масса, кг

L1

L2

L2

Общая

RWN-RR-4000(50c)-ЕС-НЕ8,6-Vertical(N)

500x600

1350

1410

740

640

700

2110

1410

1530

166

205

172

543

RWN-RR-4000(50c)-ЕС-W-Vertical(N)

500x600

1350

1410

740

690

700

2160

1470

1530

166

220

172

558

RWN-RR-5500(50c)-ЕС(B500)-НЕ13,5-Vertical(N)

RWN-RR-5500(50c)-ЕС(L400)-НЕ13,5-Vertical(N)

500x600

1350

1410

740

640

700

2110

1410

1530

175

205

180

560

RWN-RR-6000(50c)-ЕС(B500)-НЕ16,1-Vertical(N)

RWN-RR-6000(50c)-ЕС(L400)-НЕ16,1-Vertical(N)

500x600

1350

1410

740

640

700

2110

1410

1530

175

205

180

560

RWN-RR-6000(50c)-ЕС(B500)-W-Vertical(N)

RWN-RR-6000(50c)-ЕС(L400)-W-Vertical(N)

500x600

1350

1410

740

690

700

2160

1470

1530

175

220

180

575

RWN-RR-6800(50c)-ЕС(B500)-НЕ21-Vertical(N)

RWN-RR-6800(50c)-ЕС(L400)-НЕ21-Vertical(N)

500x600

1350

1410

740

640

700

2110

1410

1530

175

205

180

560

RWN-RR-7400(50c)-ЕС(B500)-НЕ24-Vertical(N)

RWN-RR-7400(50c)-ЕС(L400)-НЕ24-Vertical(N)

600x600

1400

1510

740

640

700

2110

1460

1530

184

215

189

588

RWN-RR-7400(50c)-ЕС(B500)-W-Vertical(N)

RWN-RR-7400(50c)-ЕС(L400)-W-Vertical(N)

600x600

1400

1510

740

690

700

2160

1520

1530

184

230

189

603

Габаритные размеры RWN-RR-300(50m)...RWN-RR-1700(50c) (мм) в исполнении корпуса Classic

RWN-RR-EC_Classic 300-1700.jpg

Bm* - размер указан для водяного исполнения
Диаметр патрубков водяного нагревателя G ½

Модель и

типоразмер

D

B

H

L

S

Lm

Bm

Hm

Масса, кг

RWN-RR-300(50c)-ЕС-НЕ0,4-Classic(N)

Ø160

520

930

1250

418

1370

560

1030

112

RWN-RR-400(50c)-ЕС-НЕ0,8-Classic(N)

Ø200

520

930

1250

418

1370

560

1030

112

RWN-RR-500(50c)-ЕС-НЕ1,5-Classic(N)

Ø200

520

930

1250

418

1370

560

1030

118

RWN-RR-500(50c)-ЕС-W-Classic(N)

Ø200

520

930

1400

418

1520

620

1030

124

RWN-RR-600(50c)-ЕС-НЕ1,9-Classic(N)

Ø200

520

930

1250

418

1370

560

1030

120

RWN-RR-600(50c)-ЕС-W-Classic(N)

Ø200

520

930

1400

418

1520

620

1030

126

RWN-RR-1000(50c)-ЕС-НЕ1,8-Classic(N)

Ø250

832

930

1360

418

1480

872

1030

172

RWN-RR-1000(50c)-ЕС-W-Classic(N)

Ø250

832

930

1400

418

1520

932

1030

172

RWN-RR-1300(50c)-ЕС-НЕ2,9-Classic(N)

Ø315

832

930

1360

418

1480

872

1030

180

RWN-RR-1300(50c)-ЕС-W-Classic(N)

Ø315

832

930

1400

418

1520

932

1030

180

RWN-RR-1700(50c)-ЕС-НЕ3,8-Classic(N)

Ø315

832

930

1360

418

1480

872

1030

200

RWN-RR-1700(50c)-ЕС-W-Classic(N)

Ø315

832

930

1400

418

1520

932

1030

200

Габаритные размеры RWN-RR-2500(50с)...RWN-RR-3600(50c) (мм) в исполнении корпуса Classic

RWN-RR-EC_Vertical 2500-3600.jpg

Bm* - размер указан для водяного исполнения
Диаметр патрубков водяного нагревателя G 1“

Модель и

типоразмер

b1 x h1

B

H

Lm

Bm

Hm

Масса, кг

RWN-RR-2500(50c)-ЕС-НЕ4,5-Classic(N)

600x300

1140

1150

1460

1180

1250

290

RWN-RR-2700(50c)-ЕС-НЕ5,6-Classic(N)

600x300

1140

1150

1460

1180

1250

290

RWN-RR-2700(50c)-ЕС-W-Classic(N)

600x300

1140

1150

1460

1240

1250

290

RWN-RR-3600(50c)-ЕС-НЕ9,4-Classic(N)

600x350

1140

1180

1460

1180

1280

295

RWN-RR-3600(50c)-ЕС-W-Classic(N)

600x350

1140

1180

1520

1240

1280

300

Габаритные размеры RWN-RR-4000(50с)...RWN-RR-7400(50c) (мм) в исполнении корпуса Classic

RWN-RR-EC_Vertical 4000-7400.jpg

Bm* - размер указан для водяного исполнения

Модель и типоразмер

b1 x h1

B

H

L1

L2

L3

Lm

Bm

Hm

Масса, кг

L1

L2

L2

Общая

RWN-RR-4000(50c)-ЕС-НЕ8,6-Classic(N)

700x400

1350

1410

520

480

780

1810

1410

1530

112

175

182

469

RWN-RR-4000(50c)-ЕС-W-Classic(N)

700x400

1350

1410

520

480

780

1810

1450

1530

112

175

192

479

RWN-RR-5500(50c)-ЕС(B500)-НЕ13,5-Classic(N)

RWN-RR-5500(50c)-ЕС(L400)-НЕ13,5-Classic(N)

800x500

1350

1410

610

480

870

1990

1410

1530

160

175

204

539

RWN-RR-6000(50c)-ЕС(B500)-НЕ16,1-Classic(N)

RWN-RR-6000(50c)-ЕС(L400)-НЕ16,1-Classic(N)

800x500

1350

1410

610

480

870

1990

1410

1530

160

175

204

539

RWN-RR-6000(50c)-ЕС(B500)-W-Classic(N)

RWN-RR-6000(50c)-ЕС(L400)-W-Classic(N)

800x500

1350

1410

610

480

870

1990

1450

1530

160

175

214

549

RWN-RR-6800(50c)-ЕС(B500)-НЕ21-Classic(N)

RWN-RR-6800(50c)-ЕС(L400)-НЕ21-Classic(N)

1000x500

1350

1410

610

480

870

1990

1410

1530

160

175

204

539

RWN-RR-7400(50c)-ЕС(B500)-НЕ24-Classic(N)

RWN-RR-7400(50c)-ЕС(L400)-НЕ24-Classic(N)

1000x500

1350

1410

610

480

870

1990

1410

1530

160

175

204

539

RWN-RR-7400(50c)-ЕС(B500)-W-Classic(N)

RWN-RR-7400(50c)-ЕС(L400)-W-Classic(N)

1000x500

1400

1510

610

480

870

1990

1500

1630

178

194

238

610

Технические характеристики установок

Модель и

типоразмер

Расход воздуха, м3

Площадь

помещения, м2

Напряжение, В

Вентиляторы

Мощность

нагревателя, кВт

Ток ТЭНа

(на фазу),

А

Уровень шума Lp, дБ(A)

Мощность,

кВт

Ток, А

RWN-RR-300-ЕС-НЕ0,4

300

120

1~220В

0,17

0,8

0,4

2,6

41,1

RWN-RR-400-ЕС-НЕ0,8

400

160

1~220В

0,34

2

0,8

5,3

39,8

RWN-RR-500-ЕС-НЕ1,5

500

200

1~220В

0,34

2

1,5

10,5

39,8

RWN-RR-500-ЕС-W

500

200

1~220В

0,34

2

-

-

39,8

RWN-RR-600-ЕС-НЕ1,9

600

240

1~220В

0,46

2,2

1,9

15,8

43

RWN-RR-600-ЕС-W

600

240

1~220В

0,46

2,2

-

-

43

RWN-RR-1000-ЕС-НЕ1,8

1 000

400

1~220В

0,46

2,2

1,8

10,5

43

RWN-RR-1000-ЕС-W

1 000

400

1~220В

0,46

2,2

-

-

43

RWN-RR-1300-ЕС-НЕ2,9

1 300

520

1~220В

0,98

4,1

2,9

15,8

42,5

RWN-RR-1300-ЕС-W

1 300

520

1~220В

0,98

4,1

-

-

42,5

RWN-RR-1600-ЕС-НЕ5,5*

1 600

640

3~380В

0,98

4,1

5,5

10,5

42,5

RWN-RR-1600-W*

1 600

640

3~380В

0,98

4,1

-

-

42,5

RWN-RR-1700-ЕС-НЕ3,8

1 700

680

1~220В

1,18

4,2

3,8

21

42,5

RWN-RR-1700-ЕС-W

1 700

680

1~220В

1,18

4,2

-

-

42,5

RWN-RR-2000-ЕС-НЕ7,5*

2 000

800

3~380В

1,4

6,2

7,5

21

45,8

RWN-RR-2000-W*

2 000

800

3~380В

1,4

6,2

-

-

45,8

RWN-RR-2500-ЕС-НЕ4,5

2 500

1 000

3~380В

1,4

6,2

4,5

10,5

45,8

RWN-RR-2700-ЕС-НЕ5,6

2 700

1 080

3~380В

1,4

6,2

5,6

15,8

45,8

RWN-RR-2700-ЕС-W

2 700

1 080

1~220В

1,4

6,2

-

-

45,8

RWN-RR-2900-ЕС-НЕ7,5*

2 900

1160

3~380В

1,4

6,2

7,5

21

45,8

RWN-RR-2900-ЕС-W*

2 900

1160

1~220В

1,4

6,2

-

-

45,8

RWN-RR-3600-ЕС-НЕ9,4

3 600

1 440

3~380В

2,2

3,2

9,4

21

41,8

RWN-RR-3600-ЕС-W

3 600

1 440

3~380В

2,2

3,2

-

-

41,8

RWN-RR-3700-ЕС-НЕ11,5*

3 700

1480

3~380В

2,2

3,2

11,5

31,5

41,8

RWN-RR-3700-ЕС-W*

3 700

1480

3~380В

2,2

3,2

-

-

41,8

RWN-RR-4000-ЕС-НЕ8,6

4 000

1 600

3~380В

2,2

3,2

8,6

21

41,8

RWN-RR-4000-ЕС-W

4 000

1 600

3~380В

2,2

3,2

-

-

41,8

RWN-RR-5500-ЕС(B500)-НЕ13,5

5 500

2 200

3~380В

8,6

15,6

13,5

31,5

53,1

RWN-RR-5500-ЕС(L400)-НЕ13,5

5 500

2 200

3~380В

6,62

8,4

13,5

31,5

49,3

RWN-RR-6000-ЕС(B500)-НЕ16,1

6 000

2 400

3~380В

8,6

15,6

16,1

31,5

53,1

RWN-RR-6000-ЕС(B500)-W

6 000

2 400

3~380В

8,6

15,6

-

-

53,1

RWN-RR-6000-ЕС(L400)-НЕ16,1

6 000

2 400

3~380В

6,62

8,4

16,1

31,5

49,3

RWN-RR-6000-ЕС(L400)-W

6 000

2 400

3~380В

6,62

8,4

-

-

49,3

RWN-RR-6800-ЕС(B500)-НЕ21

6 800

2 720

3~380В

8,6

15,6

21

42

53,1

RWN-RR-6800-ЕС(L400)-НЕ21

6 800

2 720

3~380В

6,62

8,4

21

42

49,3

RWN-RR-7400-ЕС(B500)-НЕ24

7 400

2 960

3~380В

8,6

15,6

24

52,5

53,1

RWN-RR-7400-ЕС(B500)-W

7 400

2 960

3~380В

8,6

15,6

-

-

53,1

RWN-RR-7400-ЕС(L400)-НЕ24

7 400

2 960

3~380В

6,62

8,4

24

52,5

49,3

RWN-RR-7400-ЕС(L400)-W

7 400

2 960

3~380В

6,62

8,4

-

-

49,3

* Только в исполнении корпуса Compact.
Lp, дБ(A) - Уровень звукового давления в окружение на расстоянии 3 метров.
Площадь помещения рассчитана из условия обеспечения однократного воздухообмена при высоте потолков 2,5 метра.
Электрический нагреватель выполнен на полупроводниковой технологии PTC  (Positive Temperature Coefficient) и имеет эффект саморегуляции, то есть его мощность меняется в зависимости от скорости воздуха, который его обдувает. В связи с этим реальная мощность может отличаться от номинального значения, указанного в таблице.
Если, при низких температурах наружного воздуха, мощности нагревателя недостаточно чтобы достичь желаемую температуру приточного воздуха, то происходит автоматическое снижение производительности вентилятора.

Аэродинамические характеристики

RWN-RR-EC_аэродинамика 1.jpg

RWN-RR-EC_аэродинамика 2.jpg

Не представленные в наличии модели доступны к поставке под заказ

Оповестить о поступлении

Спасибо за обращение!
Наш менеджер свяжется с вами.
Руководство RWN-RR-EC.pdf
Инструкция по подключению к Wi-Fi для установок RWN с ЕС электродвигателем.pdf
Описание и функционал контроллера M245 в системе ALOKA.pdf

Всю необходимую информацию также можно получить по телефону «горячей линии»

+ 7 800 200 93 96

или по телефону

+7 800 505 08 67 получить консультацию